族库Family Library
联系我们Contact
推荐产品>>
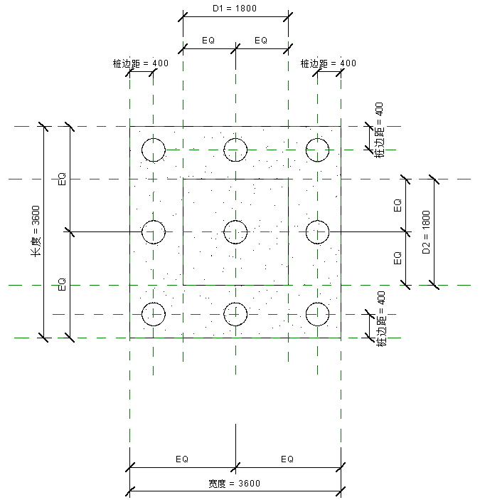
桩基承台-9桩
桩基承台是建筑在桩基上的基础平台。平台一般采用钢筋混凝土结构,起承上传下的作用,把墩身荷载传到基桩上。各种承台的设计中都应对承台做桩顶局部压应力验算,承台抗弯及抗剪切强度验算。承台的沉降问题有时也非常重要。
三维效果

立面效果

平面效果

族参数

Copyright © 2023-2025 公司名称 版权所有 地址:北京市西城区南礼士路62号 备案号:ICP备********号 网站地图