您好,欢迎访问本站!

登录/注册 管理员入口

政策服务Policy Services

联系我们Contact

公 司: 设计云
联系人: 王经理
手 机: 17888821120
地 址: 北京市西城区南礼士路62号

历史荣光与现代风华的交融 | 北京港澳中心瑞士酒店改造

发布日期:2024-10-25

由于所处优越的地理位置和优秀的城市文脉,北京港澳中心瑞士酒店的改造设计工作从城市层面入手,尊重原有建筑的特色,梳理零散的建筑语言,重新组织功能构架,并赋予其新的亮点,形成建筑独特的文化特征,充分体现港澳中心的历史价值,以及其作为地标对城市的影响。项目改造过程中贯彻环保、节能及绿色的设计理念,提出了精确化产品定位,打造具有差异化、竞争力的酒店。

回顾历史

北京港澳中心瑞士酒店(下文称“港澳中心”)位于东二环路东四十条桥东南处,地处中央商务区、使馆区交汇处,紧邻东四十条地铁站, 靠近工人体育场、三里屯使馆区。地理位置优越、交通便利。

图片

港澳中心地理位置

港澳中心自1991年3月开业以来,先后接待了众多港澳政商人士,是开展港澳工作、港澳各界人士来京联谊的重要场所,作为2008 年北京残奥会总部饭店,也为2008北京奥运会作出了贡献。这座酒店综合体豪华地标,不仅是亚洲首座无障碍式建筑的典范,更作为港澳在京的窗口,承载着多元商务、文化交流的功能。

然而,历经近二十年风雨洗礼,港澳中心面临着外立面老化、交通流线混乱、室内装修陈旧、机电设备老化等一系列问题,亟待全面更新升级,以适应时代变迁,继续为全球宾客提供优质服务。

图片

港澳中心原貌

开创未来

本次改造秉持“尊重与优化”的核心理念:“尊重”是在“尊重原有空间”的基础上,对“酒店特征”予以最大限度的传承;“优化”是以“国际视野”赋予现有建筑新的活力。

改造设计在充分认识港澳中心历史价值的基础上,结合建筑特有的区位、文化积淀及交流平台等优势,遵循“保持既有建筑风貌,依据建筑功能做适当调整与优化”的原则,以“继往开来”为主题,对酒店进行升级改造优化,力求打造一个集高贵、舒适和文化品位为一体的综合高端商务酒店。

图片

港澳中心新颜

改造关注城市关系

自港澳中心建成后的20年里,围绕项目所在地北京东二环立交桥,陆续建起三栋办公、酒店类项目:保利大厦、新保利大厦、中汇广场,港澳中心与这三栋建筑共同打造出带有历史感的城市节点。从港澳中心、保利大厦的屋檐、涂料外墙到新保利的石材幕墙,再到中汇广场的全玻璃幕墙,这些建筑如同一部生动的编年史,见证了中国城市化进程的演变。面对时代变迁,港澳中心的改造旨在顺应城市发展脉搏,既延续历史文脉,又塑造崭新的城市形象,成为连接过去与未来的桥梁。

图片港澳中心地理位置城市关系

项目规划改造设计

作为北京二环路沿线的标志性建筑,港澳中心改造蕴含多方面的意义。本次改造充分考虑项目基地周边环境及城市的关系,分别对酒店外立面、功能与流线、室外景观及室内装修进行优化改造提升。

1. 建筑外立面改造

外立面改造设计,采用经典三段式造型,通过对建筑结构、功能、外观的综合考虑,简化古建形式比例,分别对建筑屋檐、建筑中部、建筑底座三部分进行表现。建筑顶部采用弧形出挑屋檐,形成舒展稳定的屋檐形象;建筑中部整体设计以横向元素为主,形成稳定舒展的建筑形象,整个建筑犹如环抱二环,与环境交相呼应;建筑基座采用横向石材肌理,增加光影、丰富立面,形成整体典雅、大气、时尚的外立面形象。

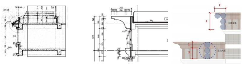
A.建筑顶部:通过对项目结构、功能、外观的综合考虑,以及简化古建形式比例,采用弧形出挑屋檐,形成舒展稳定的屋檐形象。

图片

原始屋檐\设计屋檐\屋檐比例分析

B.建筑中部:根据原始结构,优化立面横向分格,精细立面设计。

图片原始剖面\设计剖面\幕墙立面细节

C.建筑裙房:首层因面积权衡导致内退,故采用竖向片墙形成“框景”,二层为满足功能需求局部开窗,立面采用横向石材肌理,增加光影、丰富立面。

图片原始立面\立面优化\立面展示

D.入口是整个建筑的亮点部位,而现有入口空间整体低矮压抑,且入口与裙房整体关系模糊,与建筑整体简洁庄重形象不符。采用抬梁的方式且入口广场平整化处理,减弱入口压抑感,同时与裙房、整体关系明确。

图片图片图片设计立面图

图片实景立面图,建筑前地铁线路工程未拆除

2. 功能与流线改造

本项目用地较为紧张,距离地铁二号线东四十条 C出口仅20米左右,此处还在规划建造地铁3 号线,东四十条将成为换乘站,人流会大量激增,所以人流出入口规划是此项目关注的重点。

设计通过梳理场地内部原有空间布局及交通流线,使之更加明晰、简捷、合理,以满足商务酒店需要。地块主要出入口设置在东中街,并在朝阳门北大街设置出口。酒店主入口位于建筑西北侧,酒店大堂以、全日制餐厅及各功能位置保持不变,客人可便捷到达。办公入口调整至景观中心,良好的环境提升了办公的品质;公寓入口移至地块南侧,紧邻项目西侧次入口,避免公寓人员流线对啤酒花园的干扰。地面避免酒店各流线混行,停车泊位采用地面和地下相结合方式,充分利用好地下空间。

图片

港澳中心项目总平面图

图片港澳中心酒店主入口

3. 室外景观改造

项目对室外景观环境进行重点优化。景观体系根据功能需求分为入口区域、庭院绿地空间、屋顶花园、道路与外围四部分,分别进行优化,满足酒店功能需要,突出港澳中心酒店特点,提升其品质。并与城市绿化景观共融,实现酒店与城市公园共生。

4. 室内装修改造

港澳中心包含酒店、办公、公寓、中餐厅及商业等业态功能。设计以协调业态功能、建立合理高效的布局及流线为出发点,依据五星级酒店的通行标准来控制功能布局,对酒店内部及相关配套进行优化改造。综合平衡考虑各功能业态需求,实现功能最大化的价值体现。

内部各层功能布置如下:

  • 首层布置酒店大堂、前台接待、全日制餐厅、咖啡厅、后勤、商业、办公及公寓入口大堂;

  • 二层布置宴会厅、会议室、及配套后勤用房;

  • 三层布置游泳池、健身房、水疗、美发、多功能厅、配套后勤用房以及外租医院;

  • 四层 ~ 十五层布置酒店客房、配套后勤、公寓及外租办公;

  • 十六层布置酒店客房、行政酒廊、会议室、配套后勤及办公;

  • 十七层布置酒店客房及配套后勤;

  • 地下一层布置厨房、餐厅、储藏、停车、洗衣房及配套后勤;

  • 地下二层布置停车、锅炉房、机房等功能。


图片

首层平面图

图片

二层平面图

图片

标准层平面图

图片

建筑剖面图

室内装修以高档、舒适为设计原则,分公共区域、客房区域和行政楼层三个部分进行设计。裙房部分为公共区域,包含酒店大堂、前台接待、全日制餐厅、咖啡厅等公共服务区;客房区域设有三件套和四件套客房;行政楼层提供更为高品质的客房环境。室内精装汇集形式、质感、材料、光影等于一体,表达空间的品质和精神。

图片

酒店大堂

图片

酒店餐厅

图片

酒店泳池

图片

酒店客房

北京港澳中心瑞士酒店的改造工程,是一场跨越时空的对话,是一次历史荣光与现代风华的优雅邂逅。焕然一新的港澳中心,不仅延续了其作为京城标志性建筑的历史地位,更以崭新的面貌,向世界展示了北京深厚的文化底蕴与开放包容的时代精神。在这里,每一位宾客都将体验到尊贵与舒适的完美融合,感受到历史与现代交织的无穷魅力。港澳中心,正以全新的姿态,续写其在首都北京的辉煌篇章。

项目信息
项目名称:北京港澳中心外立面装修及内部改造
建设地点:北京市东城区朝阳门北大街2号
建设单位:港澳中心有限公司
设计团队:北京市建筑设计研究院股份有限公司第十一建筑设计院
设计总负责人:徐全胜、党辉军
建筑专业:卢薇薇
结构专业:伍炼红
设备专业:高建海
电气专业:赵振云
设计团队成员:党辉军、董晓煜、卢薇薇、赵胜利、权旭、韩硕、伍炼红、孙学锋、高建海、李常敏、赵振云、魏哲、张若刚、张阳、刘培献、孙亚彬、孟妍
管理团队
项目经理:董晓煜、张晓悦


移动电话:17888821120
24小时咨询热线:+86 17888821120


微信公众号


官方微博

Copyright © 2023-2025 公司名称 版权所有 地址:北京市西城区南礼士路62号 备案号:ICP备********号 网站地图